Búsqueda
Configuración
Últimos Artículos
Ver más artículos









Calle de Montesa, Goya, Salamanca, Madrid, España
Precio:
Precio m²
Fecha de entrega: 1er trimestre 2026
Totales
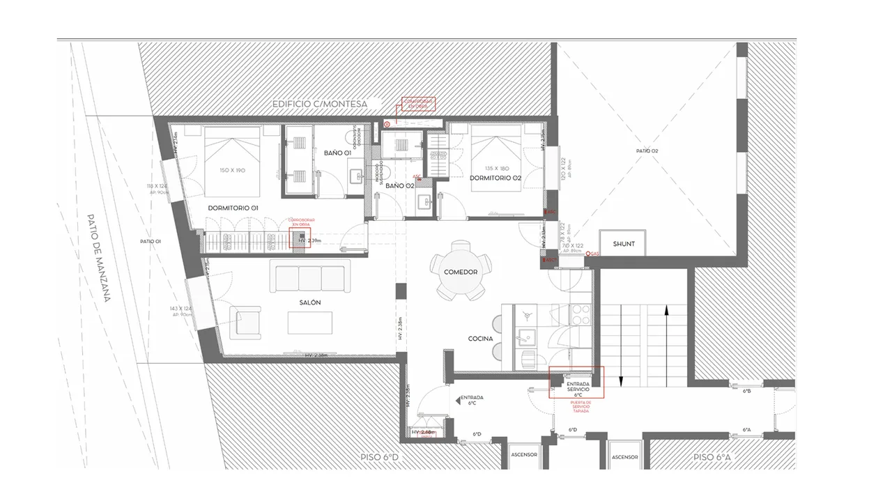
90 m²
Habitaciones
2
Baños
2
Planta
6
Garajes
0
Condiciones
Remodelado
Acabados
Amueblado
Tipo
Piso
Piso en venta en calle Montesa, barrio de Goya (Salamanca), Madrid
Luminoso piso en sexta planta con ascensor, ubicado en una de las zonas más exclusivas del distrito de Salamanca, en el barrio de Goya.
La vivienda cuenta con 2 dormitorios y 2 baños, actualmente en proceso de reforma, lo que permite estrenar un hogar moderno y funcional en pleno corazón de Madrid.
El piso es interior, pero gracias a su altura disfruta de una excelente luz natural y un ambiente tranquilo. Dispone de calefacción, aire acondicionado y portero físico, garantizando confort y seguridad durante todo el año.
Se entrega amueblado y con cocina totalmente equipada, lista para entrar a vivir.
El edificio, construido en 1976, se encuentra bien conservado y cuenta con todos los servicios necesarios en los alrededores: comercios, transporte público, restaurantes y zonas verdes.
Una oportunidad única para vivir o invertir en una de las zonas más demandadas de Madrid.
*Disponibilidad y precios sujetas cambios sin previo aviso.
Fecha de entrega
1er trimestre 2026m² Habitables
75 m²Vistas
InteriorInterior
Ascensor
Aire Acondicionado
Calefacción
Portero