Latest Articles
See more articles







Calle de Don Ramón de la Cruz, Lista, Salamanca, Madrid, España
Price:
Price m²
Delivery date: 1st quarter 2026
Total
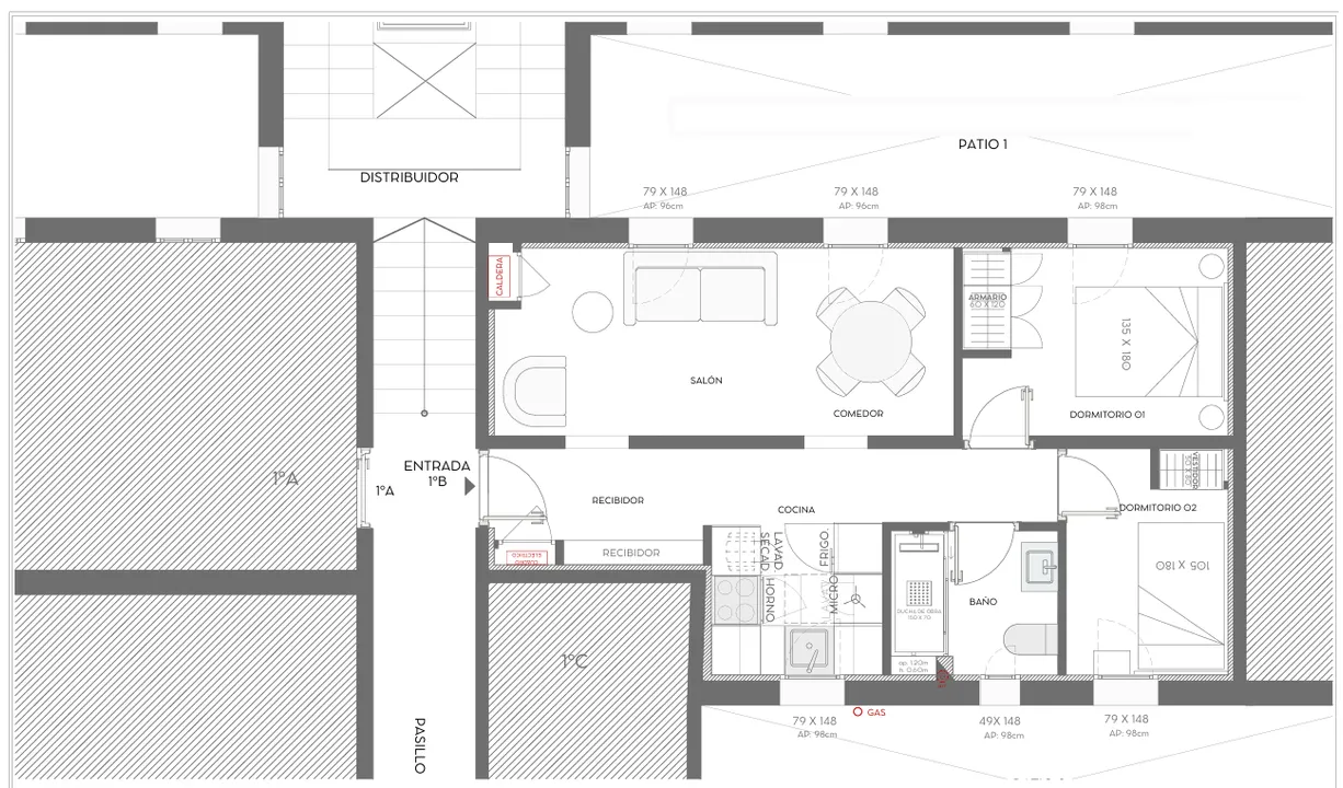
58 m²
Beds
2
Baths
1
Levels
1
Parking slots
0
Conditions
Renewed
Finishes
Furnished
Type
Apartment
In the heart of the Lista neighborhood, within the renowned Salamanca district in Madrid, this cozy interior apartment is located on the first floor of a classic building constructed in 1925. The property is currently undergoing a complete renovation, allowing for a brand-new living space in one of the most sought-after areas of the capital.
The apartment is distributed into two bedrooms and one bathroom, with an efficient layout designed to make the most of the available space. It is ideal as a primary residence, a second home, or an investment due to its excellent location and rental potential.
It features individual gas heating and air conditioning, ensuring comfort throughout the year. The building has an elevator and retains the charm of traditional Madrid architecture.
It is delivered furnished and with an equipped kitchen, ready to move in from day one.
A perfect opportunity for those seeking a functional, character-filled apartment that has been newly renovated in the heart of Lista, surrounded by shops, restaurants, public transport, and all the services of the Salamanca district.
*Availability and prices subject to change without prior notice.
Delivery date
1st quarter 2026m² Habitable
55 m²View
InteriorInterior
Elevator
Heating
Air Conditioning