Latest Articles
See more articles

Calle del Alcalde Sainz de Baranda, Ibiza, Retiro, Madrid, España
Price:
Price m²
Delivery date: Immediate
Total
67 m²
Beds
2
Baths
2
Levels
0
Parking slots
0
Conditions
Used
Finishes
Sin amueblar
Type
Apartment
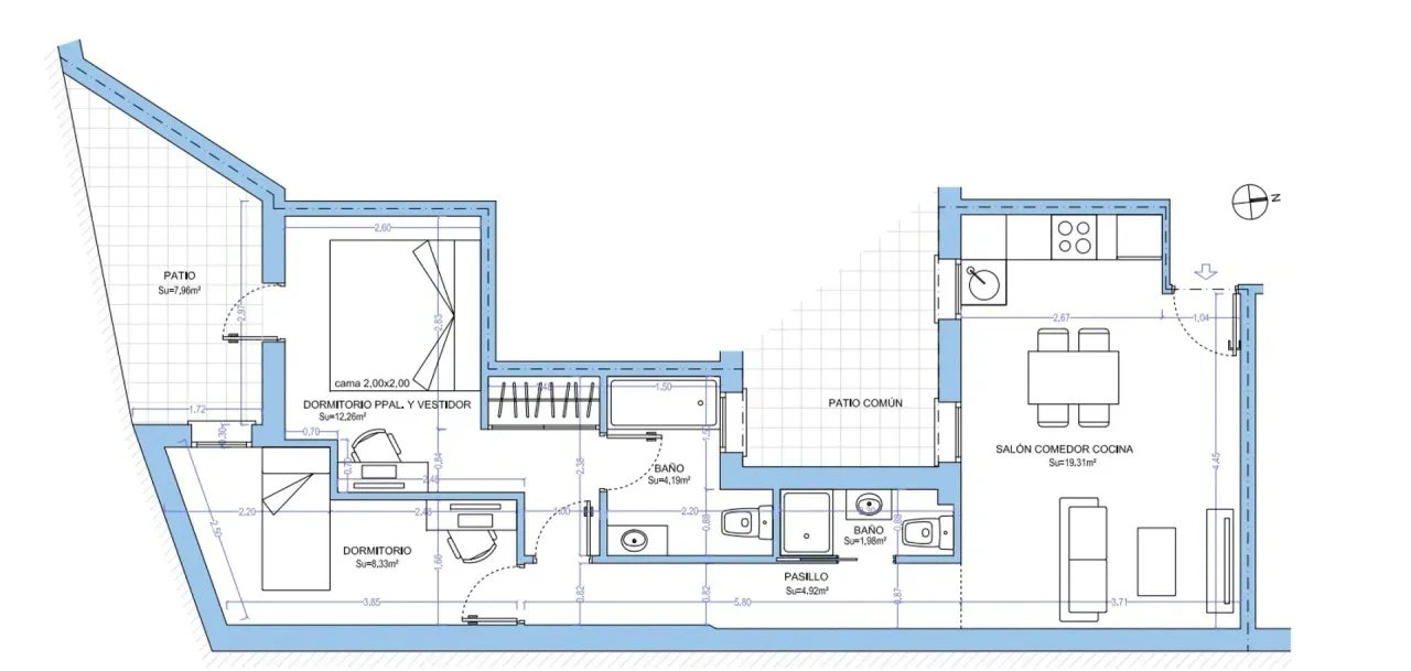
Located in one of the most elegant and sought-after areas of Madrid, this apartment is an excellent opportunity for both investors and those looking for a modern home in a privileged location. Currently undergoing renovation, it will be delivered fully updated, combining contemporary design and functionality.
Situated on an interior basement floor, it surprises with its brightness thanks to a private terrace of 12 m², oriented towards an open courtyard that provides abundant natural light and a tranquil, cozy atmosphere.
The building has an elevator with direct access to the basement, adding an extra level of comfort and accessibility.
The property will have a layout of 2 bedrooms and 2 bathrooms, as well as a functional kitchen and a spacious terrace, ideal for enjoying the outdoors in the heart of the city. All rooms have windows, reinforcing the feeling of spaciousness and clarity.
The location is unbeatable: just a 1-minute walk from Retiro Park, in an area surrounded by restaurants, supermarkets, pharmacies, and perfectly connected by public transport (Ibiza and Sainz de Baranda metro stations, several bus lines), as well as easy access to the M-30.
A gem in the heart of Madrid. Come and discover everything it has to offer!
*Availability and prices subject to change without prior notice.
Delivery date
Immediatem² Habitable
67 m²Terrace
8 m²View
InteriorElevator
Terrace