Búsqueda
Configuración
Últimos Artículos
Ver más artículos


























Urbanizacion Coto la Zagaleta, Benahavís, Marbella, Málaga, España
Precio:
Precio m²
Fecha de entrega: 4to trimestre 2027
Parcela
N/A
Habitable
1597 m²
Habitaciones
6
Baños
8
Planta
0
Garajes
4
Condiciones
Nueva
Acabados
Amueblado
Tipo
Casa
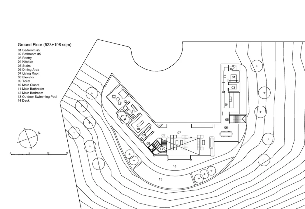
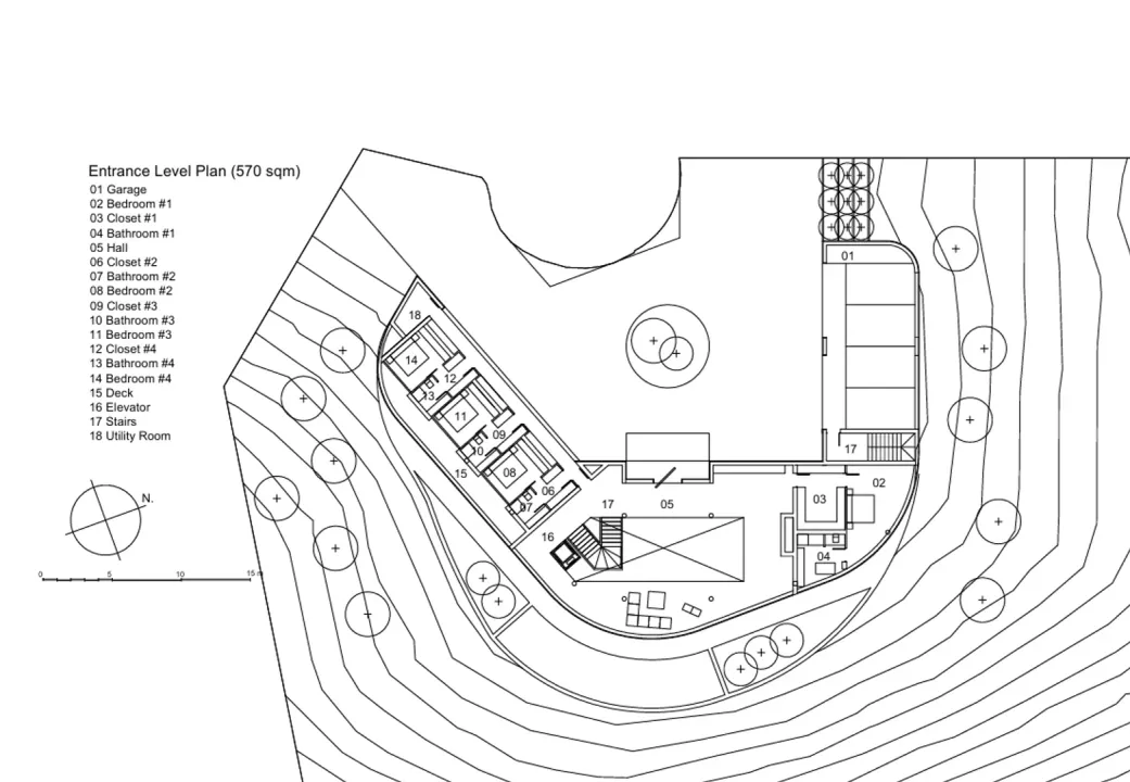
Ubicada en el enclave más exclusivo de Europa, esta villa de lujo en La Zagaleta representa la perfecta armonía entre arquitectura contemporánea, diseño sofisticado y un entorno natural incomparable. Concebida para un cliente que busca privacidad absoluta, vistas panorámicas y materiales de la más alta calidad, la propiedad se integra de manera elegante en una de las parcelas más privilegiadas de la urbanización, rodeada de naturaleza mediterránea y con vistas abiertas al mar, al valle y a las montañas.
La vivienda se desarrolla con un enfoque de arquitectura sostenible, amplios ventanales de suelo a techo y una distribución fluida que conecta las zonas interiores con amplias terrazas, jardines paisajísticos y una piscina de diseño infinito. Las áreas de día destacan por su amplitud y luminosidad, mientras que los espacios privados ofrecen el máximo confort, con suites cuidadosamente diseñadas, baños en mármol natural y vestidores independientes.
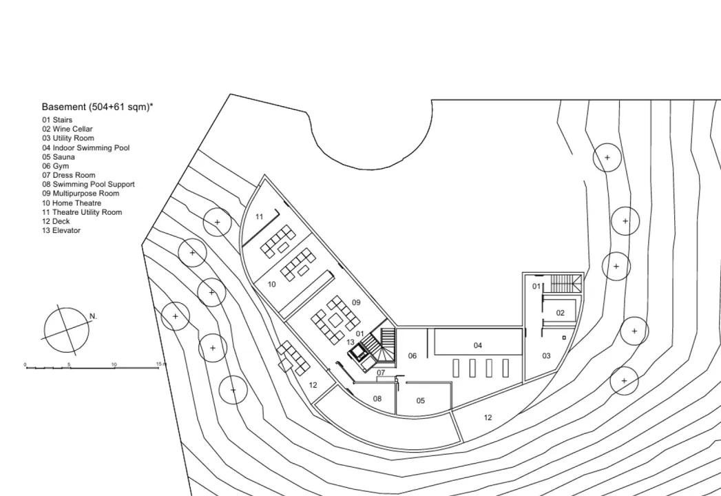
La villa incorpora además un conjunto de comodidades de primer nivel: spa privado, gimnasio equipado, sala de cine, bodega climatizada y garaje para varios vehículos. Cada detalle —desde la iluminación ambiental hasta los sistemas domóticos avanzados— ha sido seleccionado para garantizar una experiencia de vida excepcional.
Con un alto nivel de seguridad, servicios premium y acceso a instalaciones privadas como campos de golf, hípica, club social y control de acceso 24h, esta villa se posiciona como una residencia única destinada a convertirse en un referente de lujo y exclusividad en Marbella.
*Disponibilidad y precios sujetas cambios sin previo aviso.
Fecha de entrega
4to trimestre 2027m² Habitables
1597 m²m² Jardín
198 m²Cuarto de servicio
SIAire Acondicionado
Piscina
Área de Lavado
Armario
Asadores
Aseo
Áreas de Convivencia
Aparcamiento Cubierto
Biblioteca
Calefacción
Cine
Cuarto de Servicio
Electrodomésticos
Exterior
Gimnasio