Búsqueda
Configuración
Últimos Artículos
Ver más artículos
Valle de Tena V, Boadilla del Monte, Madrid, España
Precio:
Precio m²
Precio:
Precio m²
Fecha de entrega: Inmediata
vivienda individual construida en 2008 en parcela de 2.550 m2, con vivienda principal de 700 m2 y casa independiente con chimenea y aseo de 70 m2.
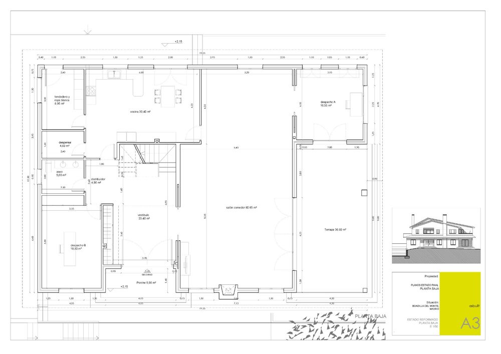
Distribución:
PLANTA SÓTANO 150 m2 construidos.
Garaje, trastero, cuarto de instalaciones y estancia con bañera.
PLANTA BAJA 270 m2 construidos.
Consta de amplio distribuidor a doble altura con lucernario y gran número de armarios. Escalera de doble ancho. Salón comedor con chimenea; Despacho. Amplia cocina con zona de office comunicada con el salón; Cuarto de ropa blanca y plancha (todas las estancias con salida a jardín) y despensa. Cuarto de estar con instalación de cine y pantalla integrada. Aseo de cortesía.
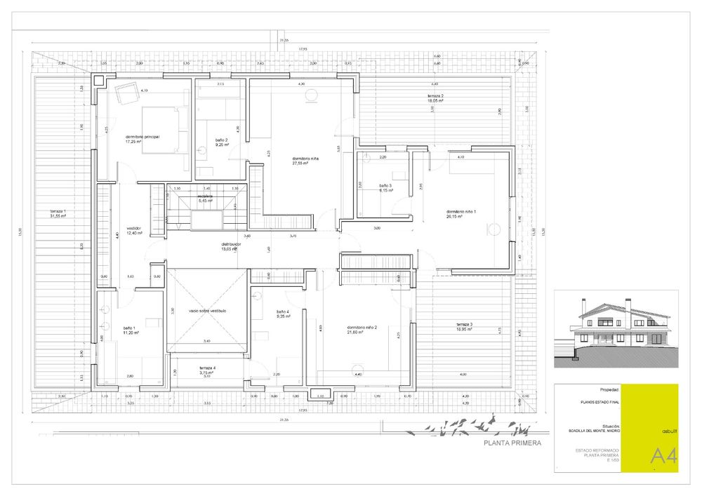
PLANTA PRIMERA 280 m2 construidos.
Cuatro dormitorios en suite con numerosos armarios empotrados y cuartos de baño exteriores.
VIVIENDA AUXILIAR 70 m2 construidos.
Vivienda con chimenea y aseo.
Adjuntamos planos con cotas de la distribución de las plantas.
Características:
Cimentaciones de hormigón armado y estructura mixta con forjados de hormigón y pilares metálicos. Gran aislamiento térmico por la fachada ventilada y el doble espesor de los muros perimetrales.
Solados exteriores sobre solera de hormigón armado con granito nacional. Fachada revestida de piedra caliza blanca. Cubierta terminada en pizarra.
Solados interiores con baldosas de mármol travertino de grandes dimensiones en planta baja, y tarima de madera maciza de Elondo en planta primera.
Carpintería de aluminio anodizado, con rotura de puente térmico, y persianas motorizadas de seguridad en planta baja.
La vivienda cuenta con detectores de intrusión en todas las estancias, y alarma conectada a la empresa de seguridad 24 horas. Puerta de acceso a la vivienda blindada de doble hoja.
Gas natural y calefacción mediante colectores de suelo radiante con agua. Dispone de aire acondicionado en todas las estancias, incluida la cocina, mediante bombas de frío calor.
Suministro de agua con sistema de depuración salina en la acometida de la vivienda.
*Disponibilidad y precios sujetas cambios sin previo aviso.
Totales
2550 m²
Habitaciones
6
Baños
6
Planta
3
Garajes
2
Condiciones
Buen estado m
Acabados
Con acabados
Tipo
Villa

Fecha de entrega
Inmediatam² Habitables
770 m²Family room
SICuarto de servicio
SICuarto de Servicio
Jacuzzi
Lavandería
Seguridad 24/7
Terraza
Vestidores
Área de Lavado
Calefacción
Exterior
Electrodomésticos
Zona de despensa
Piscina
Aparcamiento Cubierto
Jardín Privado
Aseo



























Agendar visita
Cargando...
Valle de Tena V, Boadilla del Monte, Madrid, España