Búsqueda
Configuración
Últimos Artículos
Ver más artículos










































Santa Cruz de Marcenado IV, Arapiles, Chamberí, Madrid, España
Precio:
Precio m²
M² Totales
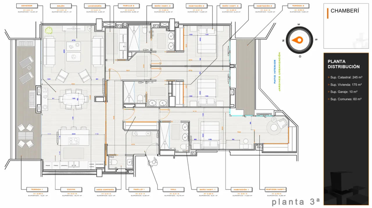
245 m²
Habitaciones
3
Baños
4
Planta
3
Garajes
1
Condiciones
Nueva
Acabados
Sin amueblar
Tipo
Piso
Nolab ofrece estupenda oportunidad de adquirir la más reciente vivienda reformada en el Edificio Princesa. Es una finca de construcción brutalista en Madrid, diseñada por los arquitectos Fernando Higueras y Antonio Miró Valverde, y completado en 1975. Es notable por su arquitectura singular, su uso predominante de hormigón y su diseño que integra la vegetación, como si fuera un jardín vertical.
La vivienda ha sido diseñada e íntegramente rehabilitada por un estudio de arquitectura e Interiorismo especializado en rehabilitación de gran nivel.
¡El área social lo contempla todo! Cocina integrada al comedor y salón de aproximadamente 57 metros cuadrados, con salida directa a la terraza principal de casi 14 metros cuadrados.
Como se puede contemplar en el plano, cuenta con tres dormitorios en suite más un aseo de cortesía. Una de las suites tiene acceso directo a la terraza interior.
La calidad y la tecnología hacen parte de esta acogedora vivienda; domótica programada en un ipad, serán entregadas junto con las llaves de su nuevo hogar.
Una cómoda plaza de garaje, en la misma finca, se incluye en la venta del piso.
El nuevo Propietario adquirirá una vivienda de diseño y a estrenar, remodelada con acabados de gran calidad y múltiples detalles que hacen de esta casa un producto exclusivo y muy atractivo, tanto para aquellos que quieran vivir en una de las mejores zonas de Madrid, como para quienes busquen realizar una inversión con ALTAS RENTABILIDADES (4,8% Anual por Alquiler + 1,67% Anual por Revalorización).
*Disponibilidad y precios sujetas cambios sin previo aviso.
m² totales
245 m²m² habitables
175 m²Fecha de entrega
InmediataBalcón
NOm² terraza
22 m²Roof garden privado
NOAire Acondicionado
Área de Lavado
Ascensor
Aseo
Armario
Calefacción
Electrodomésticos
Exterior
Lavandería
Terraza
Portero