Búsqueda
Configuración
Últimos Artículos
Ver más artículos






Calle de Juan de Juanes, Adelfas, Retiro, Madrid, España
Precio:
Precio m²
Totales
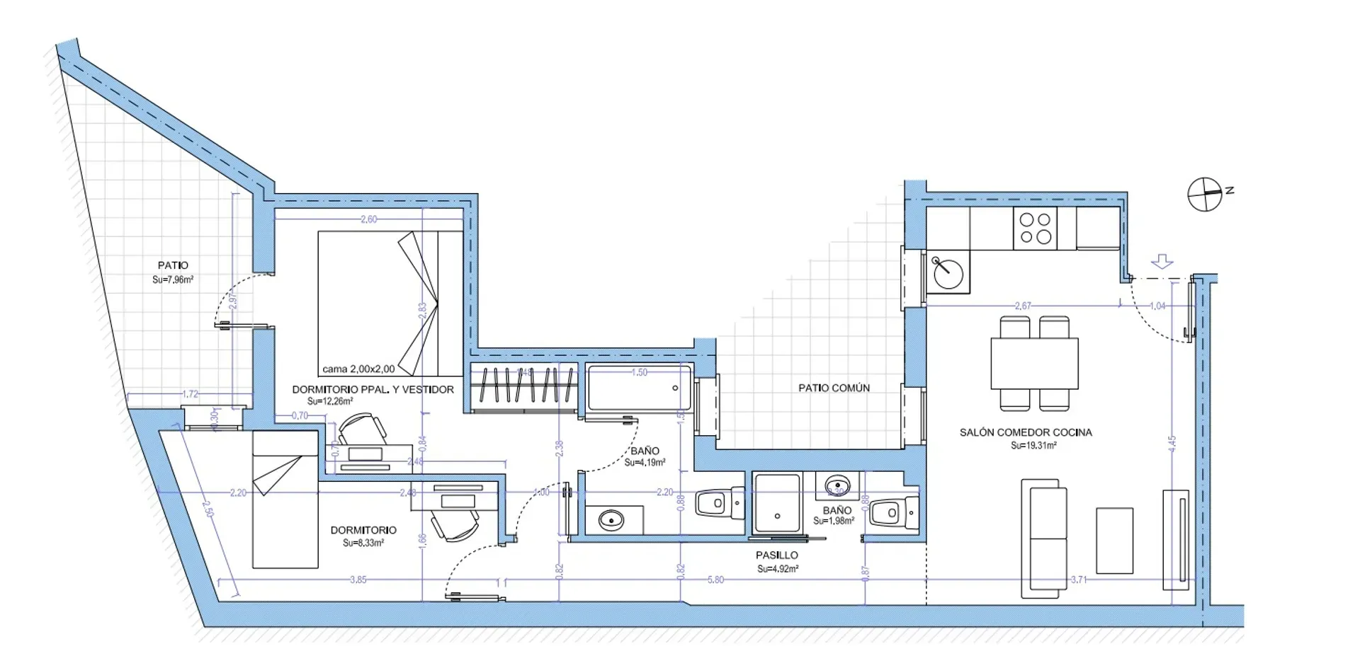
116 m²
Habitaciones
1
Baños
2
Planta
N/A
Garajes
0
Condiciones
Remodelado
Acabados
N/A
Tipo
Piso
Descubre esta nueva promoción de 4 viviendas exclusivas a estrenar en un edificio completamente renovado, con fecha prevista de finalización en julio de 2025 Situado en la tranquila calle Juan de Juanes, en el corazón del barrio de Adelfas, esta promoción combina la elegancia de una rehabilitación integral con la comodidad de las instalaciones más modernas y eficientes
El edificio cuenta con una excelente calificación energética, gracias a un sistema de aislamiento de última generación y climatización mediante aerotermia Además, es completamente accesible, lo que lo hace ideal para cualquier perfil de comprador Esta es una oportunidad única para adquirir una vivienda de obra nueva con la ventaja fiscal de estar sujeta al Impuesto de Transmisiones Patrimoniales (ITP), lo que supone un importante ahorro frente al IVA que aplica en otras promociones
La Zona: Barrio de Adelfas
Ubicado en uno de los barrios más tranquilos y bien conectados de Madrid, Adelfas ofrece un equilibrio perfecto entre calma residencial y la comodidad de tener todos los servicios a mano A solo unos minutos a pie, encontrarás una amplia oferta de comercios locales, supermercados, farmacias, centros educativos y parques Además, el famoso Parque de El Retiro, uno de los mayores y más emblemáticos pulmones verdes de Madrid, se encuentra a solo 20 minutos caminando, ideal para disfrutar de paseos al aire libre, actividades deportivas y momentos de relajación en plena naturaleza
En cuanto a las comunicaciones, el edificio está estratégicamente ubicado para facilitar los desplazamientos tanto en vehículo privado como en transporte público Las principales vías de acceso, como la M30 y la A3, permiten moverse fácilmente por la ciudad y conectar con otras localidades cercanas Además, la estación de metro de Pacífico (Línea 1 y 6) y varias líneas de autobuses urbanos se encuentran muy cerca, facilitando el acceso al centro de Madrid y a otros puntos clave de la capital
Detalle de
*Disponibilidad y precios sujetas cambios sin previo aviso.
m² Habitables
116 m²a estrenar
acceso personas con movilidad reducida
animales
antena TV
armarios empotrados
ascensor
calefacción central
cocina americana
cocina amueblada
cocina equipada
escaleras
estructura metálica
exterior
extractor de humos
horno