Búsqueda
Configuración
Últimos Artículos
Ver más artículos

Goya, Salamanca, Madrid, España
Precio:
Precio m²
Fecha de entrega: 2do trimestre 2026
Totales
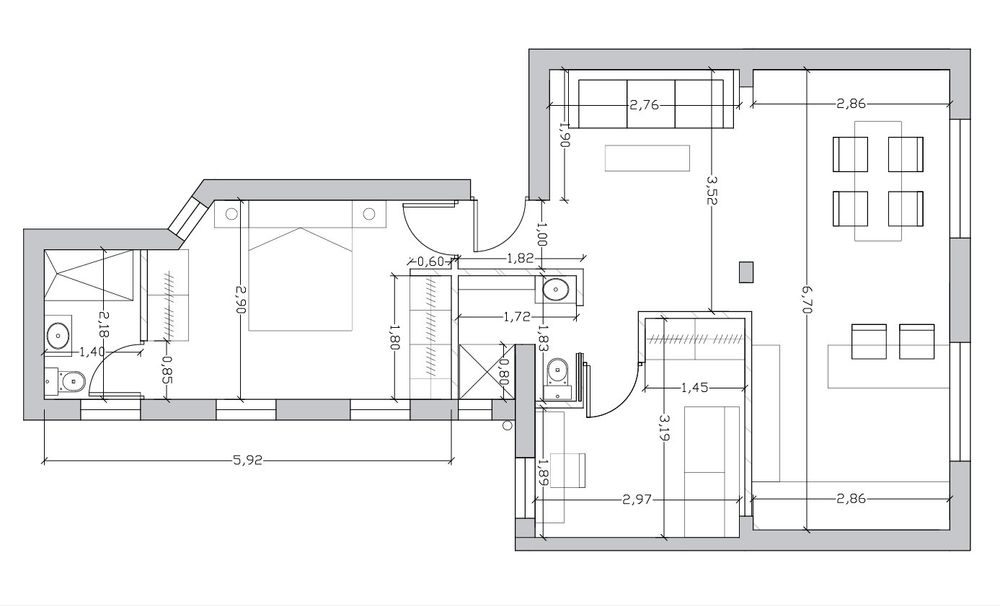
75 m²
Habitaciones
2
Baños
2
Planta
1
Garajes
0
Condiciones
Remodelado
Acabados
Con acabados
Tipo
Piso
*Disponibilidad y precios sujetas cambios sin previo aviso.
Fecha de entrega
2do trimestre 2026