Búsqueda
Configuración
Últimos Artículos
Ver más artículos
López de Hoyos XI, Castellana, Salamanca, Madrid, España
Precio:
Precio m²
Precio:
Precio m²
Fecha de entrega: 4to trimestre 2025
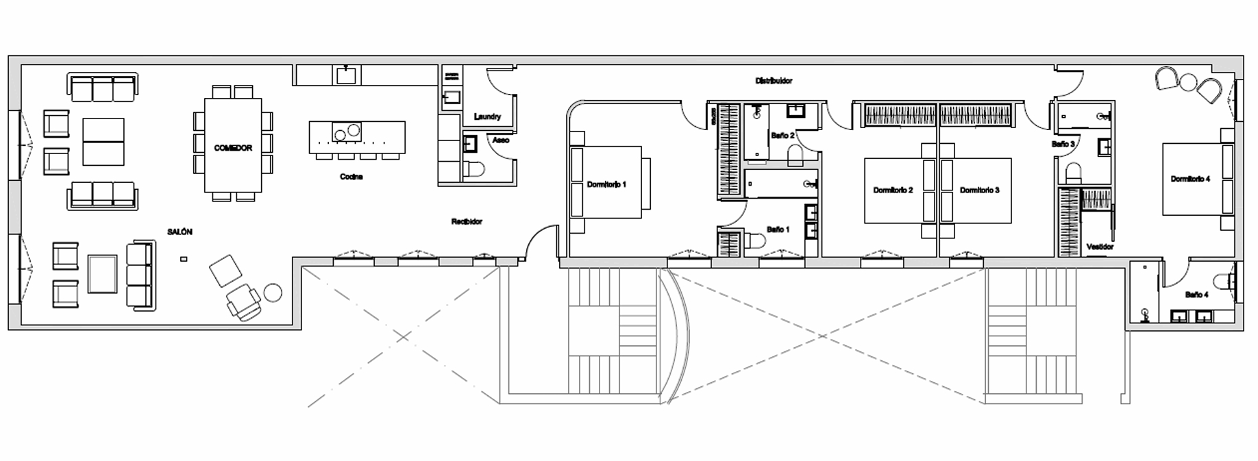
Espectacular vivienda señorial en López de Hoyos (Madrid)
Ubicada en una finca representativa de 1934, esta magnífica propiedad de 243 m² construidos se sitúa en una tercera planta, destacando por su amplitud, distribución y encanto clásico.
La vivienda dispone de:
4 amplios dormitorios, con gran luminosidad
4 cuartos de baño completos
1 aseo de cortesía, ideal para visitas
Agua caliente individual
Calefacción central con contadores individuales, para mayor eficiencia
Servicio de portería, aportando seguridad y comodidad
La finca cuenta con una cuidada arquitectura de época y zonas comunes bien conservadas. Su ubicación es privilegiada, en una de las zonas más cotizadas de Madrid, con excelentes comunicaciones y todos los servicios a pocos pasos.
Una oportunidad única de vivir con estilo en el corazón de Madrid.
*Disponibilidad y precios sujetas cambios sin previo aviso.
Totales
243 m²
Habitaciones
4
Baños
5
Planta
3
Garajes
0
Condiciones
Remodelado
Acabados
Amueblado
Tipo
Piso

Fecha de entrega
4to trimestre 2025m² Habitables
243 m²Vistas
ExteriorAscensor
Aire Acondicionado
Calefacción
Exterior
Portero



















































Agendar visita
Cargando...
López de Hoyos XI, Castellana, Salamanca, Madrid, España