Búsqueda
Configuración
Últimos Artículos
Ver más artículos






Jorge Juan IX, Goya, Salamanca, Madrid, España
Precio:
Precio m²
M² Totales
50 m²
Habitaciones
2
Baños
1
Planta
6
Garajes
0
Condiciones
Remodelada
Acabados
Amueblado
Tipo
Piso
Vivienda en el barrio de Goya (Madrid)
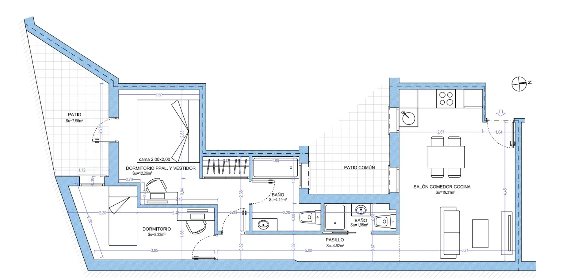
Ubicada en una tranquila finca de la calle Jorge de Juan, esta vivienda interior en 6ª planta ofrece una superficie de 50 m² catastrales, actualmente en obras.
Se distribuye en 2 habitaciones y 1 baño, ideal para parejas, pequeños núcleos familiares o como inversión en una zona demandada. Dispone de calefacción y aire acondicionado, garantizando confort durante todo el año.
Una opción versátil en una ubicación privilegiada del barrio de Goya.
*Disponibilidad y precios sujetas cambios sin previo aviso.
m² totales
50 m²m² habitables
47 m²Fecha de entrega
1er trimestre 2026Balcón
NOTerraza
NORoof garden privado
NOAscensor
Aire Acondicionado
Calefacción
Interior
Portero