Búsqueda
Configuración
Últimos Artículos
Ver más artículos

Calle del Alcalde Sainz de Baranda, Ibiza, Retiro, Madrid, España
Precio:
Precio m²
Fecha de entrega: Inmediata
Totales
67 m²
Habitaciones
2
Baños
2
Planta
0
Garajes
0
Condiciones
Usado
Acabados
Sin amueblar
Tipo
Piso
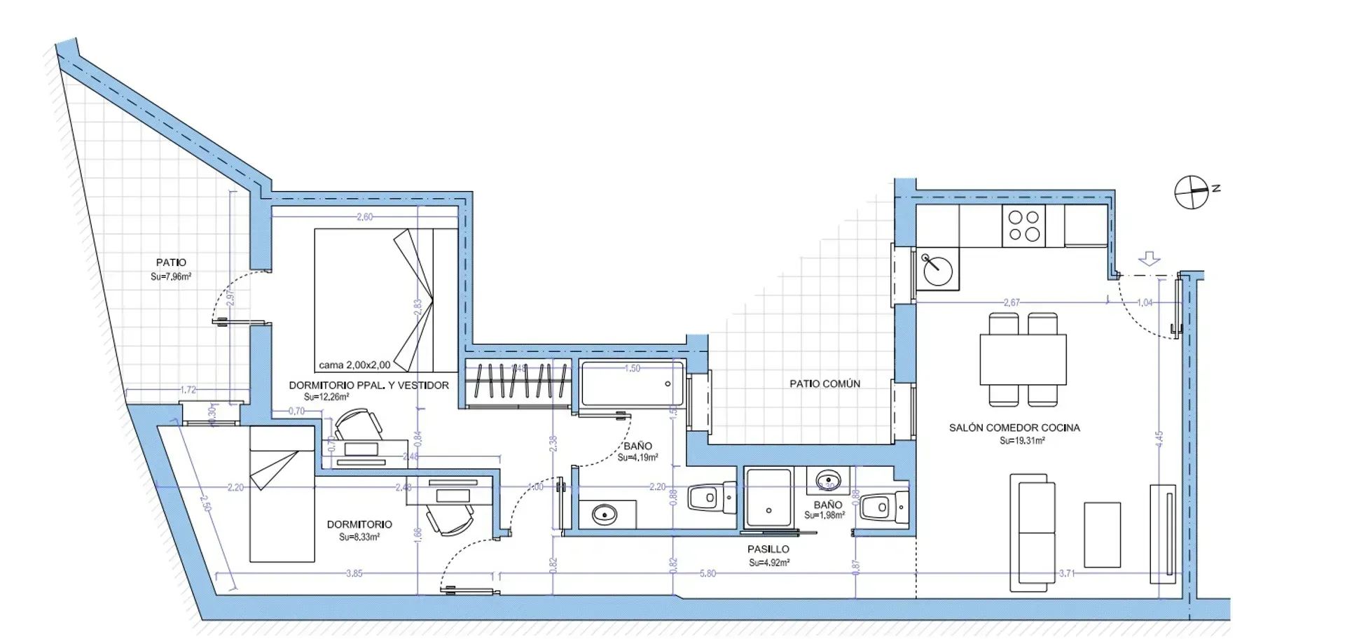
Ubicado en una de las zonas más elegantes y cotizadas de Madrid, este piso es una excelente oportunidad tanto para inversores como para quienes buscan un hogar moderno en una ubicación privilegiada.
Actualmente en proceso de reforma, se entregará completamente actualizado, combinando diseño contemporáneo y funcionalidad.
Situado en una planta sótano interior, sorprende por su luminosidad gracias a una terraza de uso privativo de 12 m², orientada a un patio abierto que proporciona abundante luz natural y un ambiente tranquilo y acogedor.
El edificio cuenta con ascensor con acceso directo hasta el sótano, lo que aporta un plus de comodidad y accesibilidad.
La vivienda tendrá una distribución de 2 habitaciones y 2 baños, además de una cocina funcional y la amplia terraza, ideal para disfrutar del aire libre en pleno centro de la ciudad. Todas las estancias disponen de ventana, lo que refuerza la sensación de amplitud y claridad.
La ubicación es inmejorable: a tan solo 1 minuto a pie del Parque del Retiro, en un entorno rodeado de restaurantes, supermercados, farmacias y perfectamente comunicado mediante transporte público (metro Ibiza y Sainz de Baranda, varias líneas de autobús), así como con fácil acceso a la M-30.
Una joya en el corazón de Madrid. ¡Ven a conocerlo y descubre todo lo que puede ofrecerte!
*Disponibilidad y precios sujetas cambios sin previo aviso.
Fecha de entrega
Inmediatam² Habitables
67 m²Terraza
8 m²Vistas
InteriorAscensor
Terraza