Latest Articles
See more articles









Menéndez Pelayo VII, Ibiza, Retiro, Madrid, España
Price:
Price m²
M² Total
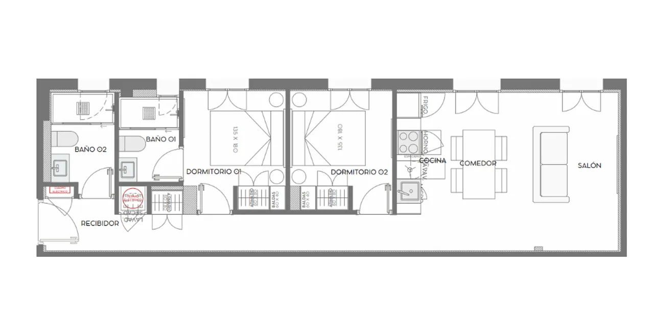
73 m²
Beds
2
Baths
2
Levels
5
Parking slots
0
Conditions
Renewed
Finishes
Furnished
Type
Apartment
Luminoso piso con gran potencial junto al Parque del Retiro, en Ibiza – Retiro
En la emblemática calle Menéndez Pelayo, frente al Parque del Retiro y en pleno barrio de Ibiza, se encuentra esta vivienda interior situada en una quinta planta de un edificio clásico con ascensor y servicio de portería.
El piso cuenta con dos habitaciones y dos baños, ofreciendo una distribución cómoda y funcional. Se encuentra a reformar, lo que permite adaptarlo completamente a las necesidades y estilo de su futuro propietario. Dispone de calefacción, aire acondicionado y se entrega amueblado, con la cocina equipada.
El edificio, construido en 1933, conserva el encanto de la arquitectura tradicional madrileña y se ubica en una de las zonas más deseadas de la ciudad, rodeada de restaurantes, comercios, colegios y excelentes conexiones de transporte.
Una magnífica oportunidad para crear un hogar a medida o invertir en una de las ubicaciones más privilegiadas de Madrid, a solo unos pasos del Retiro.
*Availability and prices subject to change without prior notice.
m² total
73 m²m² habitable
67 m²Delivery date
1st quarter 2026Balcony
NOTerrace
NOPrivate roof garden
NOInterior
Ascensor
Aire Acondicionado
Calefacción
Portero