Latest Articles
See more articles













Calle de Hermosilla, Goya, Salamanca, Madrid, España
Price:
Price m²
Delivery date: 1st quarter 2026
Total
228 m²
Beds
4
Baths
4
Levels
5
Parking slots
1
Conditions
Renewed
Finishes
Furnished
Type
Apartment
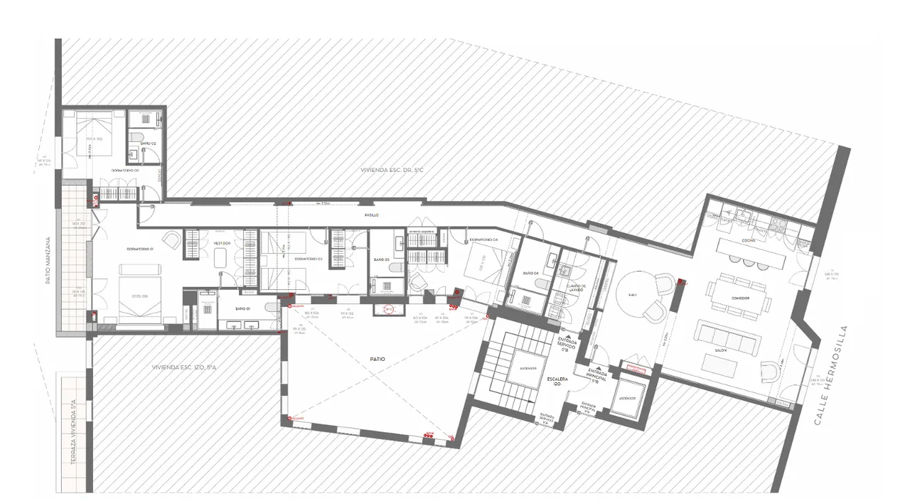
Exclusiva vivienda reformada con orientación sur en Calle Hermosilla – Barrio de Goya, Salamanca
En una de las calles más emblemáticas del barrio de Goya, en pleno distrito de Salamanca, se encuentra esta luminosa y elegante vivienda ubicada en una quinta planta exterior de un edificio representativo de los años 60. Actualmente en proceso de una cuidada reforma integral, esta propiedad combina el carácter señorial de la zona con un diseño contemporáneo y funcional.
La vivienda ofrece una distribución amplia y equilibrada, con cuatro dormitorios y cuatro baños, ideales tanto para familias como para quienes buscan espacio y confort. La orientación sur garantiza una excelente entrada de luz natural durante todo el día, creando ambientes cálidos y acogedores en cada estancia.
El amplio salón comedor se integra con una cocina moderna, totalmente equipada y amueblada, pensada para el disfrute diario y también para recibir invitados. Además, cuenta con un práctico cuarto de lavado independiente que aporta orden y funcionalidad al conjunto. El piso se entregará amueblado con piezas seleccionadas cuidadosamente, y dotado de sistema de climatización por aire acondicionado, calefacción central y tecnología de domótica para controlar fácilmente la iluminación, la temperatura y otros elementos del hogar.
La finca dispone de ascensor y la propiedad incluye una plaza de garaje en régimen proindiviso, un valor añadido poco habitual en la zona. Su ubicación, en una calle tranquila pero a escasos metros de los principales ejes comerciales, culturales y de restauración del barrio, convierte esta vivienda en una oportunidad única para vivir con todo el confort en uno de los entornos más deseados de Madrid.
*Availability and prices subject to change without prior notice.
Delivery date
1st quarter 2026m² Habitable
209 m²View
ExteriorExterior
Aparcamiento Cubierto
Ascensor
Área de Lavado
Smart Home
Aire Acondicionado
Calefacción