Latest Articles
See more articles
Price:
Price m²
Delivery date: Inmediata
"Design, light, and comfort next to Retiro Park – Cavanilles Street.
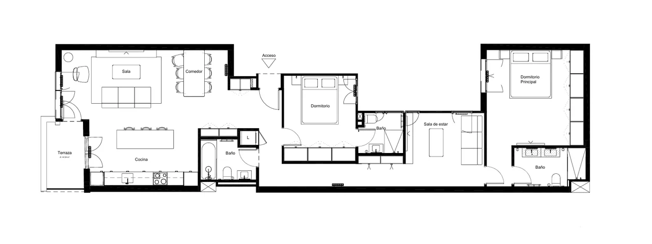
Located in one of the most sought-after areas of Madrid, this renovated 131 m² apartment offers an open layout, perfect for those who value design and urban lifestyle.
The heart of the home is a spacious social area that integrates the living room and dining room, with direct access to the terrace for enjoying pleasant dinners or breakfasts. The kitchen is open with an island, equipped with high-end appliances and natural wood finishes. Light flows naturally through large windows that connect to the terrace.
It features two en-suite bedrooms, both with private bathrooms and built-in wardrobes, ensuring comfort and independence. There is also the possibility to create a third room, ideal as an office or additional bedroom. The apartment includes a third full bathroom, very practical for guests or for servicing the day area.
Renovated with high-quality materials, warm lighting, and modern solutions, this property offers thermal comfort with air conditioning and central heating.
Situated in a well-maintained building, surrounded by services, restaurants, schools, and perfectly connected by metro and bus, this apartment is ideal both as a primary residence and as an investment.
Highlighted features:
131 m² built + terrace.
2 en-suite bedrooms (option for a 3rd bedroom)
3 full bathrooms
Equipped open kitchen
Comprehensive design renovation
A unique property in one of the most coveted areas of Madrid."
*Availability and prices subject to change without prior notice.
M² Total
131 m²
Beds
3
Baths
3
Levels
5
Parking slots
0
Conditions
Renewed
Finishes
With finishes
Type
Apartment

Operation type
For Salem² total
131 m²m² habitable
110 m²m² balcony
N/Am² terrace
N/ATerrace
Dressing Rooms
Laundry Area
Elevator
Air Conditioning
Exterior
Doorman
Restroom












































Schedule visit
Charging...
Cavanilles Street I, Pacífico, Retiro, Madrid, España